
건축소방설계(기계, 전기) 시스템 ‘화이어(Fire)’
개요
그 동안 CO-ME(꼬메) 프로그램의 일부였던 소방설비 기능을 소방설계 업체와의 협력을 통해 CO-ME 와는 별도로 소방 기계뿐 아니라 소방 전기의 기능까지 포함하여 새로운 시스템으로 선보이게 되었다. 다양한 기능과 편리한 조작을 통해 효율적인 설계 업무를 지원하기 위해 실무자의 의견을 토대로 개발했으므로 실무에 적용한다면 보다 경제적이며 효율적인 설계 업무가 이루어질 수 있으리라 확신한다.

주요 기능
스프링클러 헤드 마크 배치
스프링클러 헤드가 배치될 위치에 헤드 마크를 표시한다. 표시 범위는 사각형 또는 다각형 형태가 가능하다.
– 자동 분할 배치
– 분할 가능 한 조합별 헤드 수량 산출
– 분할 영역별 헤드 수량 수동 설정

▲사각형 배치

▲다각형 배치

▲배치 방법 옵션 창
스프링클러 배관
배치할 헤드 종류를 선택하고, 메인관을 지정한 후 배관할 헤드 마크 범위를 지정하면 헤드 마크 위치에 스프링클러 헤드가 배치되며 자동으로 메인관과 배관된다.

▲헤드 종류 선택화면

▲자동배관
▲기계부 샘플 영상
감지기 배치
사용자가 지정한 범위 내에서 감지기의 감지 면적 또는 감지기간 간격에 의해 최적의 감지기 수량이 계산되어 결정되며, 사용자의 입력에 의해 수량을 조정하여 배치 가능하다.
(1) 감지기 배치(면적)
– 배치 범위 지정 후 감지면적에 따라 계산된 수량의 감지기 배치
(2) 감지기 배치(거리)
– 배치 범위 지정 후 입력한 감지기간거리로 계산된 수량의 감지기 배치
(3) 다각형 분할 배치
– 배치 범위를 다각형으로 지정하여 범위내 자동 분할하여 배치


▲감지기 선택 화면 및 배치 방법 옵션 창

▲감지기 배치
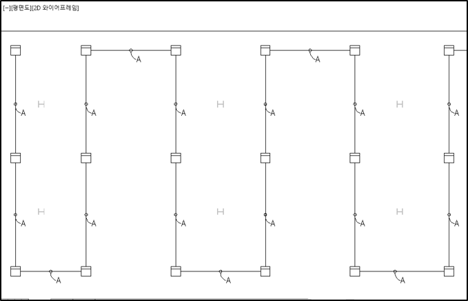
감지기 배선
배선하고자 하는 감지기의 범위를 지정하여 다양한 조건(자동, 직선, 곡선 등)으로 감지기 배선이 가능하다.
(1) 감지기 배선
– ㄹ모양 일괄 배선, 직선,곡선,원호, 45도 연결 등 다양한 형태로 배선

▲ㄹ자 배선

▲다양한 배선모드
▲감지기 샘플 영상
유도등 배치 및 배선
배치된 유도등과 유도등을 곡선 또는 직선으로 연속배치가 가능하며, 곡선 배선, 직선 배선등의 수동 기능을 이용하여 수정이 가능하다.
(1) 유도등 배치
– 배치할 유도등 종류를 선택한 후 원하는 위치와 방향을 지정하여 배치
(2) 유도등 배선
– 유도등과 유도등을 곡선 또는 직선 으로 배선

▲유도등 심볼 선택 창

▲유도등 배선
▲유도등 샘플 영상
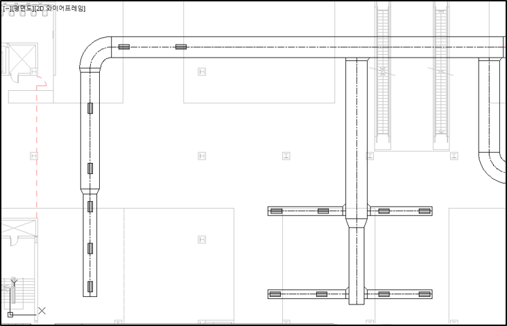
덕트의 작도
제연 덕트 작도 시, 치수 입력으로 더블라인 덕트를 손쉽게 작도한다.
(1) 덕트 경로 작도
– 덕트의 경로를 싱글라인으로 작도
(2) 더블라인 덕트
– 싱글라인으로 작도된 덕트 경로를 여러 형태(스플릿, 브랜치, 원형, 플렉시블)의 더블라인 덕트로 변경
(3) 경로 지정에 따른 덕트 작도
– 덕트의 경로를 지정하면 치수에 의해 더블라인 덕트 작도(4) 댐퍼 작도
– 작도된 더블라인 덕트 사이즈에 맞추어 삽입

▲더블라인 덕트 작도

▲댐퍼 심볼 선택 창
▲덕트부 샘플 영상
물량 스케줄 작성
범례에 따라 배치된 심볼의 물량을 산출하여 범례표에 수량을 작성한다.
(1) 기계 설비
– 스프링클러 헤드와 밸브, 장비, 소화기 등 기계설비 물량을 산출 (2) 전기 설비 – 감지기, 유도등, 발신(수신)기 등 전기설비 물량을 산출
(3) 사용자 정의 심볼
– 기능 테이블 양식에 맞추어 사용자가 직접 입력한 심볼의 이름을 기준으로 하여 물량 산출 가능

▲물량 산출표
멀티 출력 기능
간단한 조작으로 다량의 도면을 도곽별로 인식하여 한번에 출력(종이, PDF)하는 기능이다. (1) PDF 출력 – PDF 파일형태로 도면을 출력 (2) 도면 분할 기능 – 여러 도곽이 있는 도면을 각각 도면 파일로 분할 저장 (3) 다중폴더 출력 – 각각 다른 경로상의 도면들을 일괄출력
▲다중출력 메인창
속성 관리 기능
레이어(도면층)의 ON/OFF, 객체 색상 변경, 문자 스타일 변경 등 객체 정보를 손쉽게 관리하는 기능이다.

▲객체 특성 변경
– 객체의 도면층, 색상 등의 속성(정보)를 손쉽게 변경

▲블록 색상 변경
– 블록 객체를 폭파(분해)하지 않고 블록 안의 객체 색상을 변경

▲문자 스타일 변경
– 문자 객체의 스타일(글꼴)을 한번에 변경
스케일 확대/축소/저장 기능
특정 영역을 지정하여 스케일 값을 입력 후 확대/축소하여 별도의 공간에 배치하거나, 도면 파일로 저장하는 기능이다.
(1) 오려 복사하기
– 지정한 특정 영역을 지정한 축척(스케일)을 적용하여 별도의 지정 좌표에 배치 상세도 작도 시 유용한 기능
(2) 영역 삭제
– 지정한 특정 영역만을 삭제
(3) 영역 저장
– 지정한 특정 영역을 별도의 도면 파일로 저장

▲옵션 선택 창

▲오려 복사하기 실행 화면
▲스케일 샘플 영상

