
건축기계설비설계 시스템 '꼬메(CO-ME)'
| 사무실에 MS-Office가 있다면 건축설비설계사무소에는 CO-ME가 있습니다. 신속하고 효율적인 설비설계를 위해서라면 CO-ME를 활용하시기 바랍니다. 설계업무의 생산성을 생각하신다면 당연히 CO-ME를... |
꼬메(CO-ME) 2025 버전 신기능 및 기능개선
개요

CO-ME(COmputerize Mechanical Engineering; 꼬메)는 기존 범용 CAD를 기반으로 하여 건축기계설비설계(공조, 위생, 냉난방, 소방)를 위한 설계지원 소프트웨어로 계획설계부터 기본설계, 실시설계에 이르는 전 과정을 지원하는 시스템입니다.
현업의 실무자들의 자료 제공과 조언을 바탕으로 폐사의 기술력으로 개발되어 국내 설비환경에 적합한 소프트웨어입니다.
전국의 많은 설비설계사무소에서 200%이상의 업무 능률향상을 보이고 있으며, 실무자들로부터 그 우수성을 인정받고 있습니다.
꼬메(CO-ME)는 30년 이상 국내 설비설계업무를 지원했으며 표준 프로그램이 되었습니다.

주요 기능

1. 덕트 연속 작도
덕트의 크기를 지정하고 덕트가 지나는 점을 지정하면 연속으로 더블라인의 덕트가 작도된다. 계산 패드에 '사이즈 반영'이 체크되어 있을 경우, 별도의 계산 패드의 덕트 사이즈로 덕트가 작도된다.

2. 수동 작도
덕트가 지나갈 경로를 작도한 후, 각 경로에 사이즈를 입력하면서 더블라인 덕트로 변환한다. 스프릿 덕트, 직각분기(브랜치) 덕트, 원형 덕트를 작도할 수 있다.

3. 자동 작도
배치된 디퓨져를 토대로 경로를 작도한 후 경로를 추적하여 덕트 사이즈를 계산한다. 사이즈는 정압법과 등속법 중 선택할 수 있으며 두 계산 방법 중 큰 사이즈를 선택할 수도 있다. 계산된 덕트 사이즈를 바탕으로 더블라인을 자동으로 작도한다.

디퓨져 배치

경로 작성

사이즈 계산

더블라인 자동작도
4. 덕트 사이즈 계산
덕트 사이즈를 계산하기 위한 별도의 계산 패드를 제공한다. 풍량을 입력하면 조건(마찰손실, 가로세로 비율 등)에 따라 정압법과 등속법으로 사이즈를 계산한다.
5. 덕트 부속류 삽업
댐퍼, 소음기, T.V, 캔바스 이음 등 덕트에 들어가는 다양한 부속류(기기)를 손쉽게 삽입할 수 있다.

6. 덕트 사이즈 표기
작도된 덕트를 지정하여 덕트 사이즈를 다양한 방법으로 표기할 수 있다.

1. 싱글라인 배관
피팅류의 종류를 지정하고 파이프가 통과할 위치를 지정하면 선택한 피팅류 모양으로 파이프가 작도된다.

2. 여러 줄 배관
한 번의 위치 지정으로 여러 줄 배관이 작도된다.

3. 배관 편집기능
기 작성된 배관의 피팅류의 변환이나 연결 배관을 선택하면 해당 조건에 맞는 피팅류가 삽입된다.

4. 더블라인 배관
싱글라인 배관을 배관 사이즈에 맞춰 더블라인 배관으로 변환한다.

5. 밸브 및 부품 작도
파이프 사이에 삽입되는 밸브 및 부품을 손쉽게 삽입할 수 있다.

1. 위생기기 라이브러리
설비작업에 사용되는 다양한 위생기기 라이브러리를 제공하며 손쉽게 배치할 수 있다. 삽입된 위생기기는 평면도, 정면도, 입면도를 손쉽게 변환할 수 있다.

2. 급수, 급탕 연결/ T연결
메인 파이프를 지정하고 연결 위치를 지정하면 지정한 피팅류로 연결한다.

3. 통기관 연결
오수 또는 배수관으로부터 통기 메인관을 손쉽게 연결하기 위한 기능이다.

4. FCU 배관
여러 줄로 동일한 패턴으로 연결되는 FCU 배관을 한 번에 연결한다.

5. 난방코일 작도
범위를 지정하면 난방코일의 배관 타입(회호리형, 지그재그형)에 따라 난방코일 배관이 작도된다.

6. 새들 작도
난방코일 배관의 굴곡 부분 또는 사용자가 지정하는 위치에 새들이 작도된다.

7. 배관 사이즈 표기
작성된 배관의 사이즈를 다양한 형태로 표기한다.


1. 스프링클러 배치
스프링클러 헤드의 종류 및 배치 범위를 지정하고, 살수 반경을 지정하면 살수반경에 맞춰 헤드를 배치한다.

2. 스플링클러 배관
배치된 스프링클러 헤드를 바탕으로 상향식, 하향식 소방 배관을 일괄 작도한다.

3. 소방 심볼 작업
소화전, 밸브류, 수격방지기 등 소방설계에 필요한 심볼을 삽입한다.

4. 헤드 반경 확인
배치된 헤드의 살수반경을 확인할 수 있다.

5. 헤드 수량 산출
스프링클러 헤드 및 블록의 수량을 손쉽게 확인할 수 있다.
[공통 기능]1. 환경 설정, 단축키 설정
사용자 환경에 맞춰 스케일, 용지 크기, 문자 높이, 심볼의 크기 등 도면작성을 위한 환경을 손쉽게 설정할 수 있다. 또, 대화상자를 통해 각 기능에 대해 단축키를 손 쉽게 정의하여 사용할 수 있다.

2. 장비 라이브러리 및 장비 일람표
설비설계에 필요한 각종 장비(공조기, 펌프, 열교환기, 보일러, 냉각탑 등)를 라이브러리로 제공한다. 장비일람표를 작성하기 위한 기본 포맷을 제공한다.

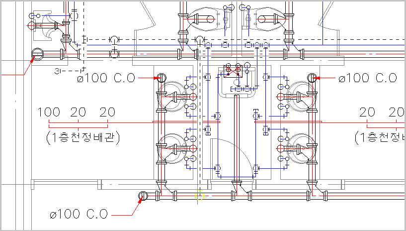
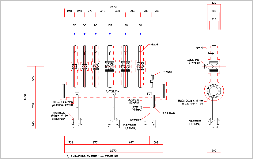
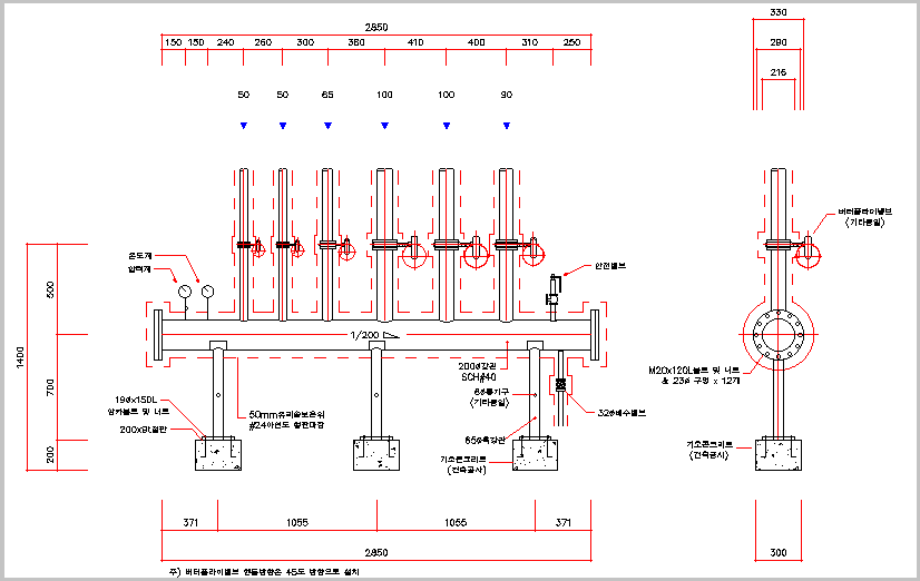
3. 헤더 작도
헤더에 삽입되는 파이프의 관경을 정의하면 냉온수 공급 및 환수, 증기 헤더 상세도를 작도한다. 파이프와 파이프 사이의 간격은 엑셀의 데이터를 이용해 사용자가 정의할 수 있다.

4. 샤프트 작도
파이프 및 덕트의 크기, 보온재 유무 및 두께를 정의하면 샤프트가 작도된다.

5. 사이즈 계산 패드
풍량에 의한 덕트 사이즈, 유량에 의한 파이프 사이즈, 위생기 수량 및 스프링클러 헤드에 의한 파이프 사이즈 계산 기능을 패드를 통해 손쉽게 계산을 가능하게 하였다.

6. 사용자 도면 관리 기능
CO-ME에서 제공되지 않는 심볼이나 자주 사용하는 도면을 사용자가 정의하여 아이콘 형태로 저장하는 기능으로 사용자 라이브러리를 구축할 수 있다.

1. 다양한 조건으로 출력하는 ‘매직 플롯(M-Plot)’
여러 도면이나 도곽을 한 번에 출력하는 출력 전문 기능이다. 출력하고자 하는 도면을 선택 후 출력 도곽 또는 영역을 지정하여 파일(dwg, PDF)로 로컬디스크에 저장하거나, 프린터로 출력한다.

2. 엑셀 데이터 관리 기능
엑셀표를 CAD로 가져오기, CAD의 테이블을 엑셀로 내보내기를 할 수 있다. CAD에서는 선과 문자 객체로 이루어진 엑셀 테이블을 작도한다. 엑셀 문서와 도면의 객체를 간편하게 관리할 수 있다.

3. 레이어 관리 기능
레이어(도면층)의 켜고/끄기, 객체별 레이어 관리(켜고/끄기, 삭제), 사용되지 않는 레이어 삭제 등 다양한 객체 관리 기능을 제공하고 있다.
4. 2차원 도면을 아이소메트릭으로 바꾸는 '투영변환'
선택한 2차원 객체를 지정한 시점에 따라 표시되는 형태로 변환하여 지정한 위치에 작도한다. 예를 들어, 밸브를 작도한 후 30도 등각투영, 45도 등각투영 도면을 작도할 수 있다.

5. 사용자가 등록한 문자열을 등록, 표기하는 'Smart TEXT'
사용자가 자주 사용하는 문자열을 등록해 놓고 간단히 표기할 수 있다. 문자를 등록할 때는 문자열의 특성(색상, 스타일, 문자, 높이 등)을 포함한다.

(1) 문자의 등록
자주 사용하는 문자열을 등록, 검색, 삭제한다.
문자열을 등록할 때는 도면에 있는 문자를 선택하여 등록 할수도 있고 직접 기입하여 등록할 수 있다.

(2) 문자의 표기
등록된 문자열 중 도면에 표기하고자 하는 문자를 선택하여 지정한 위치에 표기한다.
옵션으로 인출선을 지정하여 표기할 수도 있다.

(3) 문자의 특성 정의
문자의 특성을 대표 이름으로 정의하여 손쉽게 관리할 수 있다.
도면층, 색상, 높이, 스타일 등 특성을 정의하여 특성 이름을 부여하여 관리할 수 있다.

6. 문자열에 사각형으로 감싸는 문자 프레임
표기된 문자열을 선택한 후 사각형 범위를 선택하면 선택한 범위사각형 정 중앙에 선택한 문자열이 정렬된다.

7. 다양한 패턴의 문자표기
배관 도면 작도에 필요한 다양한 각도 및 패턴의 문자를 손쉽게 기입할 수 있다.

다음과 같이 다양한 도형에 6방향으로부터 문자를 표기할 수 있다.

8. 문자 스타일을 동시에 교체하는 '스타일 일괄 교체'
다음의 대화상자에서 현재 문자 스타일과 바꾸고자 하는 문자 스타일을 지정하여 일괄 교체한다. 치수 문자의 스타일도 변경할 수 있다.

9. 지정한 점을 따라 작도하는 '벽체 작도'
벽체의 사양을 정의하고 각 위치를 지정하면 위치를 따라 가며 벽체가 작도된다.

10. 도면에 사용되지 않은 도면층을 삭제하는 '도면층 일괄 삭제'
현재 도면에 사용되지 않은 도면층을 일괄 삭제한다.

11. 선택한 선에 맞춰 도면을 회전하는 '선 선택 도면회전'
기울어진 도면에 있는 특정한 선을 선택하면 선택한 선이 수평이 되도록 전체 도면을 회전한다.

